Puertas y Ventanas de PVC
Suteal Puertas y Ventanas de PVC, tras contrastar calidades, sistemas y servicio de las primeras marcas en extrución de perfiles de PVC ha decidido ir de la mano del extrusionador mundial por excelencia en el sector como es CORTIZO. De este modo, junto con las instalaciones y maquinaria de última generación que disponemos, ofrecemos a nuestros clientes un producto final clasificado como excelente.
Si tienes necesidad de instalar ventanas de PVC o quieres cambiar las de tu casa, te ayudamos a tomar la decisión correcta desde el principio hasta el final. Aquí podrás ver los productos que te ofrecemos y comparar sus características técnicas. Seguro que encuentras lo que estás buscando.
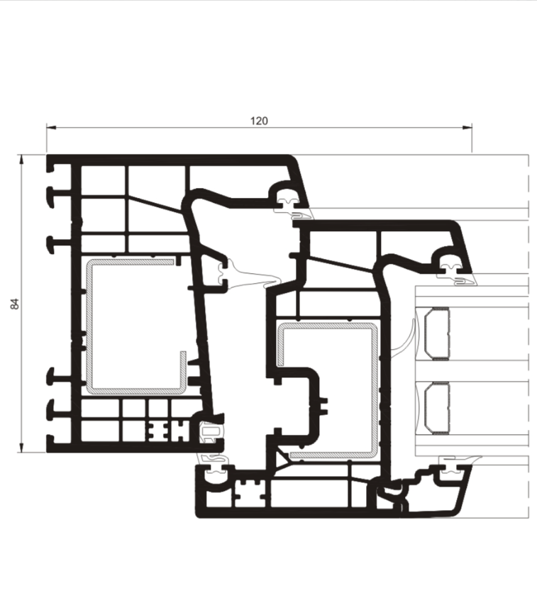
A 84 Abisagrada
Sistema abisagrado de 84 mm de profundidad de marco y 6 cámaras con excelentes prestaciones térmicas, Uf desde 1,16 W/m²K, y excelente rendimiento acústico gracias a su gran capacidad de acristalamiento de hasta 54 mm.
Posibilidades
» Herraje oculto
» Herraje de seguridad
» Accesibilidad
» Drenaje oculto





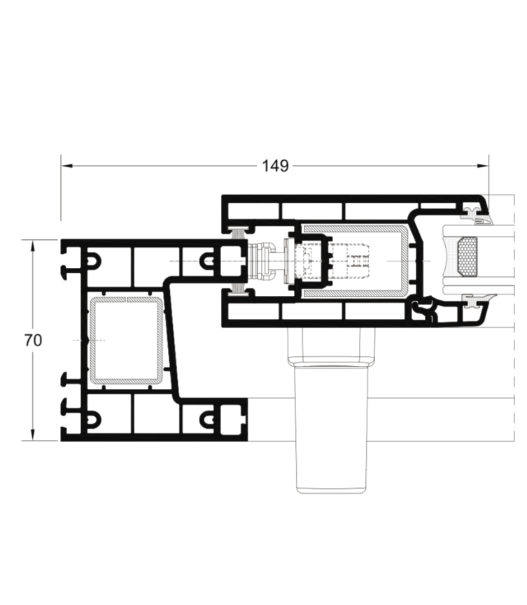
A 70 Abisagrada
Sistema abisagrado de 70 mm de profundidad de marco con una capacidad máxima de acristalamiento de 42 mm. Su perfilería de 5 cámaras interiores en marco y hoja le confiere una gran eficiencia energética con un valor de transmitancia Uf desde 1,2 W/m2K. Posibilidad de hojas con estética recta, achaflanada o curva.
Posibilidades
» Accesibilidad
» Herraje de seguridad
» Drenaje oculto




C 70 Corredera
Sistema de ventana y balconera correderas de 70 mm de profundidad de marco con un óptimo rendimiento térmico y acústico. Posibilidad de nudo central minimalista de 30 mm.
Posibilidades
» Herraje de seguridad
» Accesibilidad





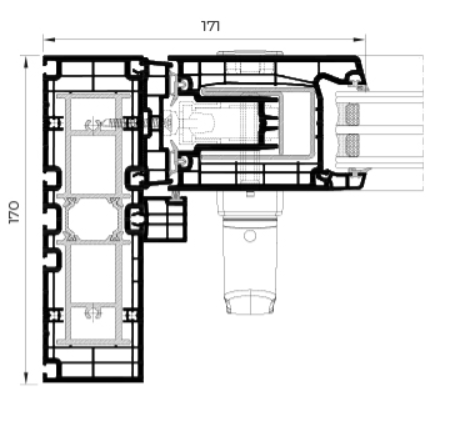
E 170 Corredera Elevable
Sistema diseñado para cerramientos de grandes dimensiones con hojas de hasta 3,3 m de ancho y 2,80 m de alto. Incorpora un sistema de herraje que eleva ligeramente la hoja al accionar la manilla y facilita el deslizamiento de las hojas en las maniobras de apertura y cierre. Presenta un marco de 170 mm de profundidad y una capacidad máxima de acristalamiento de 40 mm, ofreciendo unas destacadas prestaciones térmicas y acústicas.
Diseñada para cerrar grandes vanos, esta serie evoluciona en su diseño hacia una estética minimalista en la que se reduce la sección vista perimetral de la hoja y se apuesta por un nudo central de tan solo 50 mm.
Además, incorpora nuevas soluciones como la solera con umbral PMR para facilitar la accesibilidad y la rejilla de desagüe para terrazas.
Posibilidades
» Herraje de seguridad
» Automatización




